Atención: las ilustraciones muestran puertas de 80 cm de ancho, pues esta medida permite el paso de sillas de ruedas, pero en inmuebles nuevos, pueden ser menores: 70 cm en habitaciones y en baños. Puertas: la de entrada en el inmueble suele ser la más ancha, con 80 cm. En este y en los demás ambientes, es fundamental dejar libre el ángulo.. : las dimensiones mínimas de las vías destinadas a peatones serán de 1,20 m. para pasillos principales y de 1 m para pasillos secundarios. (Fig. 1) b. Vias exclusivas de vehículos de mercancías: si son de sentido único su anchura deberá ser igual a la anchura máxima del vehículo o carga incrementada en 1 m. (Fig. 2).

Definición el techo de la casa Cuanto debe medir un pasillo en una fabrica

Definición el techo de la casa Cuanto debe medir un pasillo en una fabrica

Pasillo doble vs pasillo único Hospitecnia
.jpg)
Arrevol Arquitectos Cómo dimensionar un Medidas mínimas y consejos

Pasillos y puertas Observatori espais escènics

Pautas para la mejora de la accesibilidad en el interior de la vivienda (II) Acceso, pasillo y

Medidas de los pasillos para los autoelevadores

Discapacitados ancho de pasillos medidas (10.87 KB) Bibliocad

Galería de Descarga esta didáctica interpretación gráfica de la normativa de accesibilidad

Pasillo doble vs pasillo único Hospitecnia

¿Cuál es el ancho ideal de un pasillo de casa?

Resultado de imagen de la cocina en el pasillo medidas Floor plans, Diagram

anchodepasilloscasa Planos de Casas Gratis

Medidas minimas para una casa Planos de Casas Gratis

Arrevol Arquitectos Cómo diseñar correctamente una cocina. Dimensiones mínimas y consejos.

¿Las medidas del pasillo son normales? Arquitectura
.jpg)
Arrevol Arquitectos Medidas mínimas y para hacer una casa accesible
.jpg)
Arrevol Arquitectos Medidas mínimas y para hacer una casa accesible

¿Cuál es la MEDIDA Estándar de un PASILLO? YouTube

Pin en Medidas
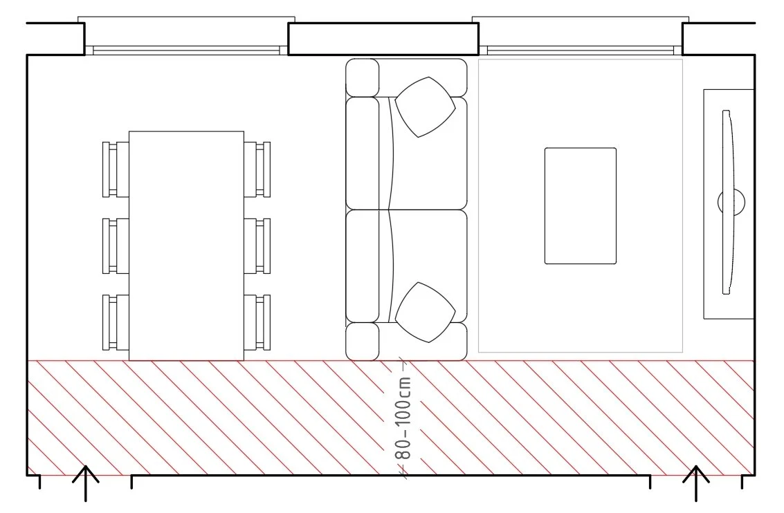
Las medidas de un pasillo pueden variar dependiendo del lugar donde se encuentre y su función específica. En general, se recomienda que un pasillo tenga una anchura mínima de 90 centímetros para permitir el paso cómodo de una persona. Sin embargo, en espacios donde se espera una mayor circulación de personas, como en hospitales o centros.. PLANTEAMIENTO¿Cuáles son las medidas mínimas que ha de tener un pasillo de tránsito? ¿Qué parámetros se sigue para saber si un pasillo está. Prácticos. Y O No Próximo. Acerca de operadores lógicos. 910 606 406 Atencion al cliente. Planes y precios. Inicio. Jurisprudencia. Legislación. Resoluciones.